For more information, please click the "More Information" button. Welcome to this stunning, fully renovated home in one of the most desirable family-friendly communities! Every detail has been thoughtfully upgraded, from the elegant hardwood flooring throughout (including the staircase) to the beautifully modern bathrooms and brand-new appliances in both kitchens. This exceptional property features two full kitchens and two laundry areas, offering outstanding flexibility. The walkout basement legal suite is completely independent, with its own entrance, full kitchen, private laundry, soundproofing and plenty of natural light. You’ll love spending time outdoors. Enjoy the spacious balcony, ideal for barbecues and relaxing, and the private backyard with mature trees, providing a lush, green retreat during the summer months. Major upgrades include a new roof, new boiler, central air conditioning, and all new appliances throughout the home. The double garage accommodates two vehicles, and there’s an additional paved parking pad, perfect for a third car. Located in a well-established neighborhood close to public, private, and Catholic schools, shopping centers, restaurants, and with easy access to Ring Road and Costco, this home offers a perfect blend of modern comfort and convenience. This one is a must-see. (id:53676)
| Bathroom Total | 4 | Bedrooms Above Ground | 3 |
| Bedrooms Below Ground | 1 | Bedrooms Total | 4 |
| Appliances | Dishwasher, Stove, Oven, Dryer, Microwave, Washer & Dryer | Basement Development | Finished |
| Basement Features | Separate Entrance, Suite | Basement Type | Full (finished) |
| Constructed Date | 1998 | Construction Style Attachment | Detached |
| Cooling Type | Central Air Conditioning | Exterior Finish | Vinyl Siding |
| Fireplace Present | Yes | Fireplace Total | 1 |
| Flooring Type | Carpeted, Hardwood, Tile | Foundation Type | Poured Concrete |
| Half Bath Total | 1 | Heating Fuel | Natural Gas |
| Heating Type | Central Heating | Stories Total | 2 |
| Size Interior | 1425 Sqft | Total Finished Area | 1425.25 Sqft |
| Type | House |
| Attached Garage | 2 |
| Parking Pad |
| Acreage | No | Fence Type | Fence |
| Land Amenities | Park, Playground, Schools, Shopping | Landscape Features | Garden Area, Lawn |
| Size Depth | 32.13 M | Size Frontage | 10.36 M |
| Size Irregular | 3584.00 | Size Total | 3584 Sqft|0-4,050 Sqft |
| Size Total Text | 3584 Sqft|0-4,050 Sqft | Zoning Description | R-g |
| Level | Type | Dimensions |
|---|---|---|
| Second Level | Primary Bedroom | 13.33 Ft x 16.67 Ft |
| Second Level | Bedroom | 10.58 Ft x 11.00 Ft |
| Second Level | Bedroom | 10.25 Ft x 9.75 Ft |
| Second Level | 4pc Bathroom | 9.33 Ft x 5.00 Ft |
| Second Level | 5pc Bathroom | 10.08 Ft x 8.00 Ft |
| Basement | Bedroom | 10.08 Ft x 15.83 Ft |
| Basement | Kitchen | 7.17 Ft x 8.17 Ft |
| Basement | Recreational, Games Room | 21.50 Ft x 11.42 Ft |
| Basement | 4pc Bathroom | 4.92 Ft x 7.58 Ft |
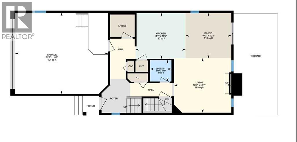
| Main Level | Kitchen | 10.58 Ft x 11.58 Ft |
| Main Level | Living Room | 12.58 Ft x 13.25 Ft |
| Main Level | Dining Room | 10.42 Ft x 10.58 Ft |
| Main Level | 2pc Bathroom | 4.92 Ft x 4.92 Ft |
Start Your Mortgage Application