fbpx

3301, 100 Banister Drive, Okotoks, Alberta T1S 5Y4

MLS® # A2272175

$430,226.35

Property Size 996
Bedrooms 2
Bathrooms 2
Year Built 2025
Garages 1

Description

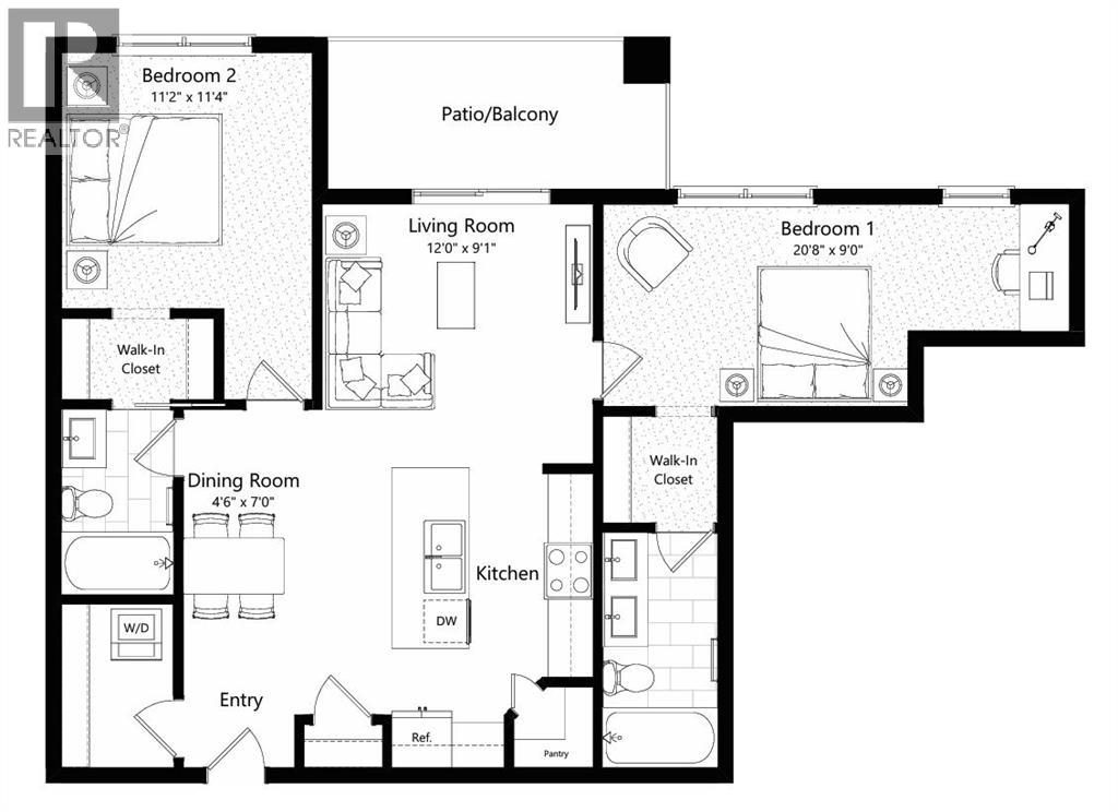
Welcome to the Harker by Partners Homes, a well-designed 996 sq. ft. 2-bedroom, 2-bathroom condo in the Lawrie Park project within the community of Wedderburn, Okotoks. This brand-new home includes underground parking, a storage locker, full new home warranty coverage, and views from the patio — a strong option for anyone looking for a comfortable, low-maintenance move. Inside, the layout is open and efficient, with 9’ knockdown ceilings and durable LVP flooring throughout, plus LVT in both bathrooms for added durability. The kitchen is finished with full-height cabinetry, additional drawers, a large island, upgraded quartz countertops, a walk-in pantry, stainless steel appliances, and a hoodfan with a built-in microwave. The living and dining areas connect naturally and open onto the patio with a BBQ gas line. The primary bedroom includes a walk-in closet and a private 4-piece ensuite featuring an upgraded fully tiled walk-in shower. The second bedroom also offers its own walk-in closet, and the second full bathroom is conveniently located just off the main living area. A separate laundry room with a stacked washer and dryer, blinds, and air conditioning add everyday practicality. Wedderburn is a peaceful and well-connected neighbourhood with walking paths, green spaces, playgrounds, and quick access to D’Arcy Crossing, where you’ll find Safeway, Starbucks, Shoppers Drug Mart, restaurants, and other essentials. With its upgraded finishes, thoughtful layout, and a location that balances convenience and quiet surroundings, the Harker stands out as a solid choice in one of Okotoks’ most desirable new developments! (id:53676)

PROPERTY FEATURES

  • MLS® Number A2272175
  • Price $430,226.35
  • Bedrooms: 2
  • Bathrooms: 2
  • Square Footage: 996 sqft
  • Property Type: Apartment
  • Community Name: Wedderburn
  • Amenities Near By Park, Playground, Schools, Shopping
  • Community Features Pets Allowed
  • Features Pvc Window, No Animal Home, No Smoking Home, Parking
  • Parking Space Total 1
  • Plan 2511764

Buildings

Bathroom Total 2 Bedrooms Above Ground 2
Bedrooms Total 2 Appliances Refrigerator, Range - Electric, Dishwasher, Microwave, Hood Fan, Window Coverings, Washer & Dryer
Constructed Date 2025 Construction Material Poured Concrete
Construction Style Attachment Attached Cooling Type Central Air Conditioning
Exterior Finish Brick, Concrete, Metal Flooring Type Vinyl Plank
Heating Type Baseboard Heaters Stories Total 4
Size Interior 996 Sqft Total Finished Area 996 Sqft
Type Apartment

Parking

Underground

Land

Acreage No Land Amenities Park, Playground, Schools, Shopping
Size Total Text Unknown Zoning Description Gc

Rooms

Level Type Dimensions
Main Level Living Room 9.08 Ft x 12.00 Ft
Main Level Kitchen 9.00 Ft x 8.67 Ft
Main Level Dining Room 7.00 Ft x 4.50 Ft
Main Level Primary Bedroom 9.00 Ft x 20.67 Ft
Main Level 4pc Bathroom 6.67 Ft x 5.17 Ft
Main Level Other 4.83 Ft x 5.08 Ft
Main Level Bedroom 11.33 Ft x 11.17 Ft
Main Level 4pc Bathroom 6.67 Ft x 5.17 Ft
Main Level Laundry Room 5.50 Ft x 5.17 Ft

BROKERAGE

  • Office: Exp Realty

Start Your Mortgage Application

Schedule a Tour

Do you have questions?

Call or text today, we are here to help!

587-719-1004

Scroll to Top