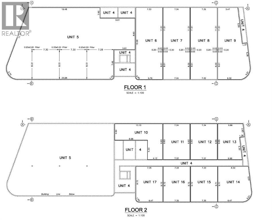
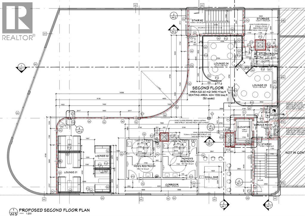
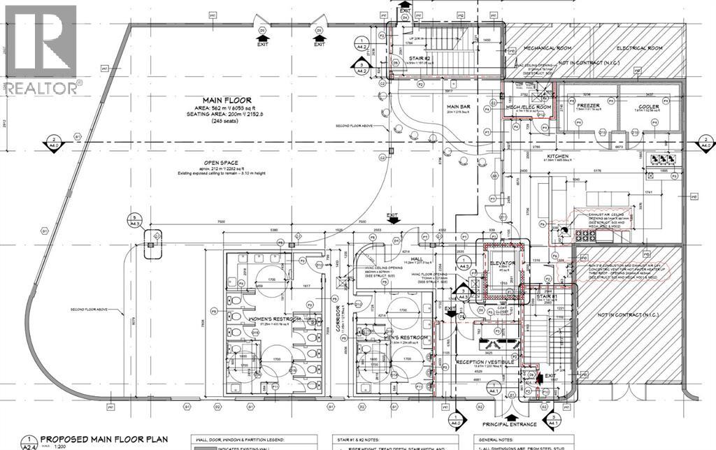
Rare opportunity to purchase a 6,235 sq. ft. shell condominium unit in a prime Airdrie location with excellent visibility from the QE2 and convenient access from Yankee Valley Blvd. This versatile commercial space offers ample parking, 24-foot ceiling height, and outstanding potential for a variety of permitted uses. A major feature of the property is the existing City approval for a second floor, allowing for expansion to approximately 10,000 sq. ft. The current owner also has approval in place for restaurant use, creating an excellent opportunity for hospitality, retail, office, or other commercial ventures. The generous ceiling height allows the option to add additional floor area or maintain an open-concept layout with the potential for impressive floor-to-ceiling glass.Zoned IB-1, this unit offers flexibility for a range of commercial and employment uses. A strong opportunity for owner-users, investors, or developers seeking exposure, accessibility, and future upside in one of Airdrie’s key commercial corridors. Electrical power is 400A, 208/120V, 3 Phase, 4 wire (TBV). Condominium parking area includes a ratio of 4.1 parking stalls per 1,000sf. (id:53676)
| Constructed Date | 2019 | Fire Protection | Full Sprinkler System |
| Size Exterior | 6235 Sqft | Size Interior | 6235 Sqft |
| Total Finished Area | 6235 Sqft | Type | Retail |
| Acreage | No | Size Total Text | Unknown |
| Zoning Description | 1b-1 |
Start Your Mortgage Application