Description
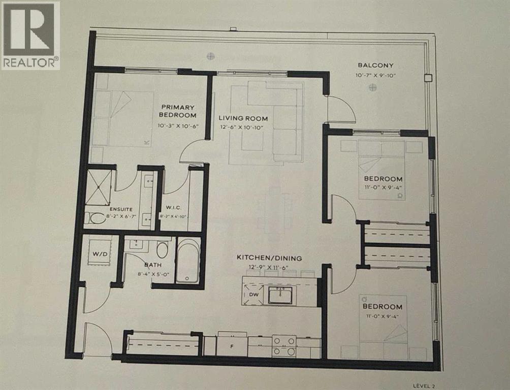
Welcome to Aspen Village by Vesta Properties! This is modern urban living in a thoughtfully designed 3-bedroom residence offering exceptional functionality, contemporary finishes, and a vibrant lifestyle setting. Featuring an open-concept layout, this home combines comfort and style with a spacious living area and designer kitchen ideal for both everyday living and entertaining.The sleek kitchen showcases quartz countertops, full-height cabinetry, under-mount sinks, and a large central island with pendant lighting. Energy-efficient stainless-steel appliances and in-suite laundry provide both convenience and modern efficiency. The primary suite offers a private retreat complete with a walk-in closet and elegant ensuite, while two additional bedrooms provide flexibility for family living, guests, or a stylish home office. A well-appointed main bathroom features clean modern detailing, quartz surfaces, and timeless fixtures.Durable luxury vinyl plank flooring flows throughout, complemented by curated interior palettes and contemporary ceiling finishes. Enjoy outdoor relaxation and entertaining on your oversized private balcony. Built with quality construction standards including triple-pane windows, engineered floor systems, and enhanced soundproofing, this home offers comfort, quiet, and energy efficiency.Residents will have the opportunity to join the members-only Aspen Club, a private amenity hub featuring collaborative workspaces, lounge areas, a state-of-the-art fitness centre and spin studio, yoga and games rooms, and beautifully designed rooftop gathering spaces. Aspen Village will also feature a vibrant Urban Village with over 60,000 sq. ft. of planned retail and services, including boutique shopping, cafés, dining, wellness studios, daycare, medical services, and everyday conveniences—creating a truly connected and walkable community atmosphere.Ideally positioned close to transit, parks, shopping, and key lifestyle amenities, this residence pre sents an exceptional opportunity for families, downsizers, or investors seeking long-term value in one of Calgary’s most exciting emerging communities. Anticipated possession is scheduled for 2027. (id:53676)