fbpx

320, 68, 7930 Bowness Road Nw, Calgary, Alberta T3B 0H3

MLS® # A2122445

$12 / ft2

Property Size 2394
Year Built 1978

Description

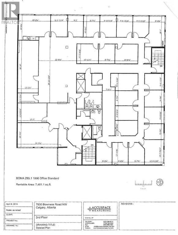
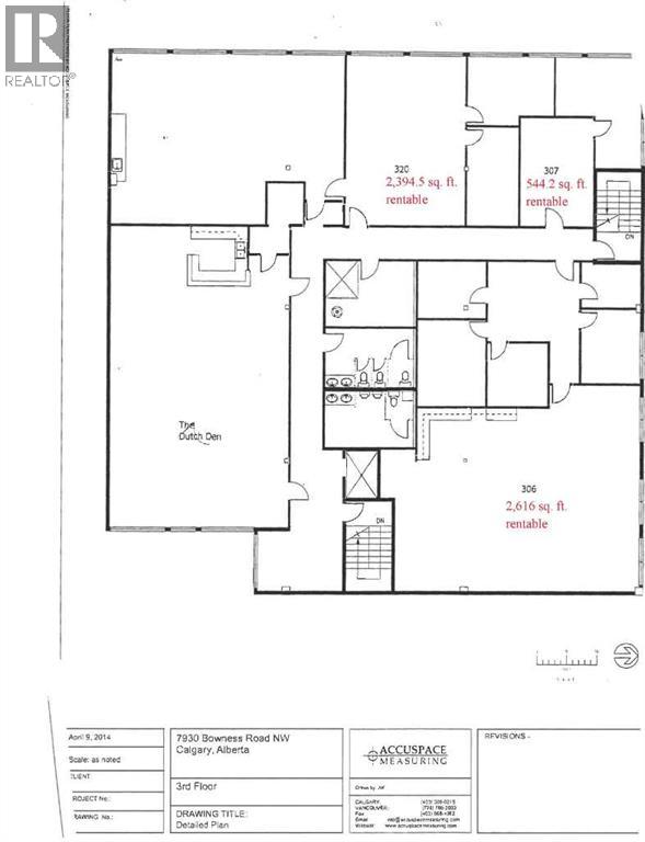
Entire 2nd floor, 7,481 sq. ft. of secure well developed space with abundant natural light, former formerly occupied by Child Family services space. 3rd floor suite of 2,394 sq. ft., can be subdivided. Elevator access, excellent parking, below market rates including utilities, and great Bowness Road location. 3 story retail /office building with elevator access. Landlord completing upgrades to common areas. Accessible location with public transit and close proximity to Hwy 1, Sarcee Trail, Stoney Trail, Crowchild Trail and Downtown. Ample front parking. (id:53676)

PROPERTY FEATURES

  • MLS® Number A2122445
  • Price
  • Square Footage: 2394 sqft
  • Property Type: Offices
  • Community Name: Bowness

Buildings

Constructed Date 1978 Size Exterior 2394 Sqft
Size Interior 2394 Sqft Total Finished Area 2394 Sqft
Type Offices

Land

Acreage No Size Total Text Unknown

BROKERAGE

  • Office: Century 21 Bamber Realty Ltd.

Start Your Mortgage Application

Schedule a Tour

Do you have questions?

Call or text today, we are here to help!

587-719-1004

Scroll to Top