fbpx

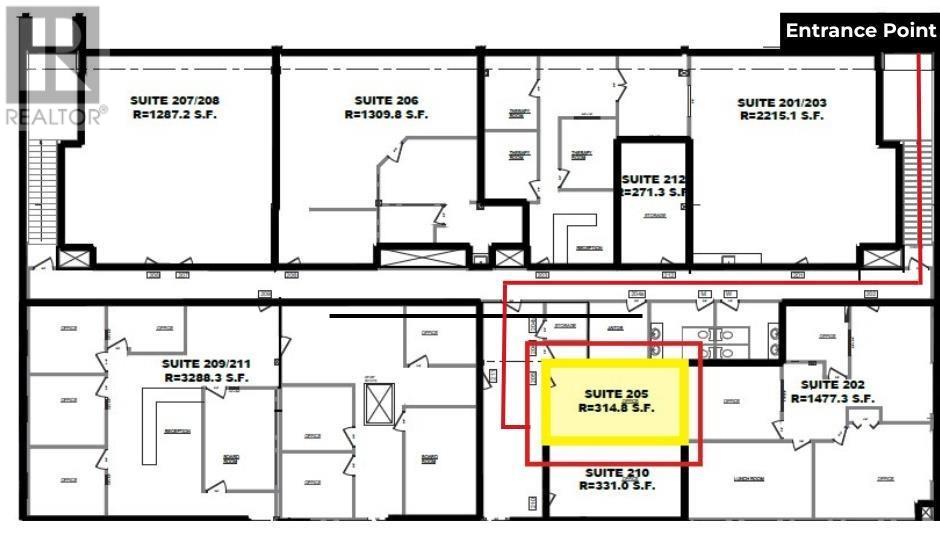
205, 11402 100 Street, Grande Prairie, Alberta T8V 2N5

MLS® # A2225967

$556 Monthly

Property Size 315
Year Built 1980

Description

Discover an ideal office space for lease, perfectly suited for professionals seeking a private and quiet work environment. This 315 sq. ft. upstairs office space offers excellent exposure while maintaining a high level of privacy. The base rent of this unit is priced to be $14.00 per square foot with an additional cost of $7.16 making the total monthly rent come to an affordable $555.45. Ready for immediate possession, this space is perfect for solo entrepreneurs or small business owners looking to move in without delay. Don’t miss out—Book a viewing today! (id:53676)

PROPERTY FEATURES

  • MLS® Number A2225967
  • Price
  • Square Footage: 315 sqft
  • Property Type: Offices
  • Community Name: VLA Montrose

Buildings

Constructed Date 1980 Size Exterior 315 Sqft
Size Interior 315 Sqft Total Finished Area 315 Sqft
Type Offices

Land

Acreage No Size Total Text Unknown

BROKERAGE

  • Office: RE/MAX Grande Prairie

Start Your Mortgage Application

Schedule a Tour

Do you have questions?

Call or text today, we are here to help!

587-719-1004

Scroll to Top